Grants iela

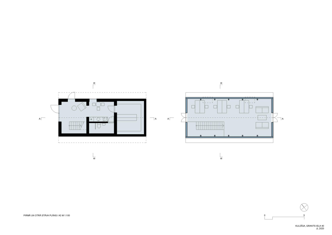
lokācija - Grants iela 40, Kuldīga

tips - dzīvojamā māja un saimniecības ēka

darbs - koncepcija

gads - 2020 - procesā

platība - 180 + 80 m2

autori - Jānis Lielmanis

vizualizācijas - Valts Urbergs

 

arhitekts jānis lielmanis

Built with Berta.me